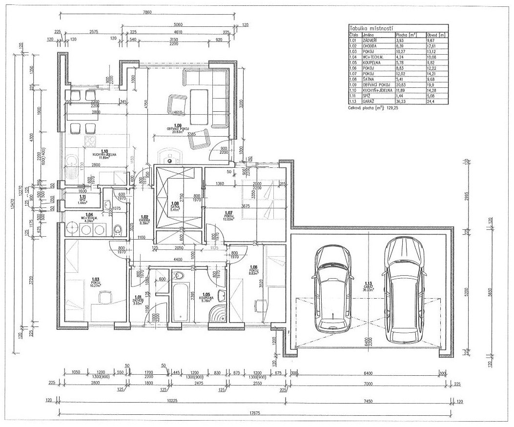
RD VSISKO Dokončené stavby PROJEKTOVÉ INFORMACE Dispozice4+kk Zastavěná plocha129,25 m2 Celková užitková plocha93,02 m2