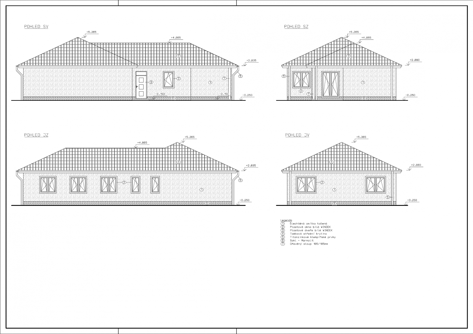
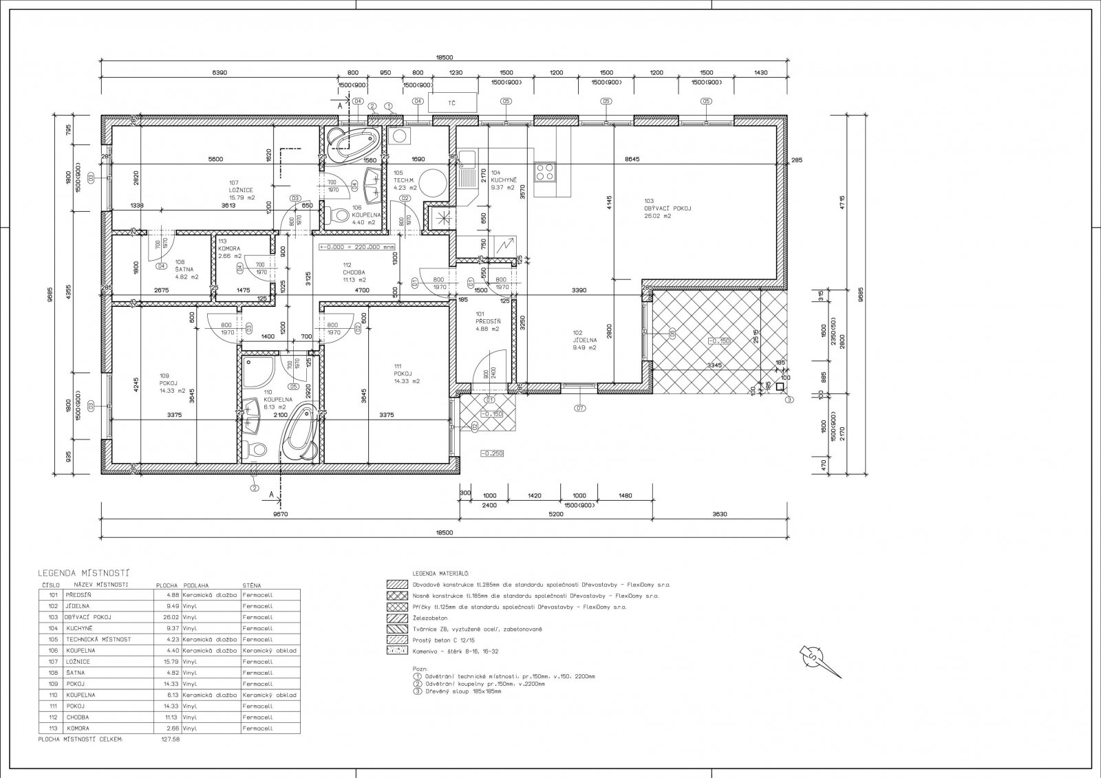
RD VELKÝ TÝNEC Dokončené stavby PROJEKTOVÉ INFORMACE Dispozice4+kk Zastavěná plocha149 m2 Celková užitková plocha126 m2