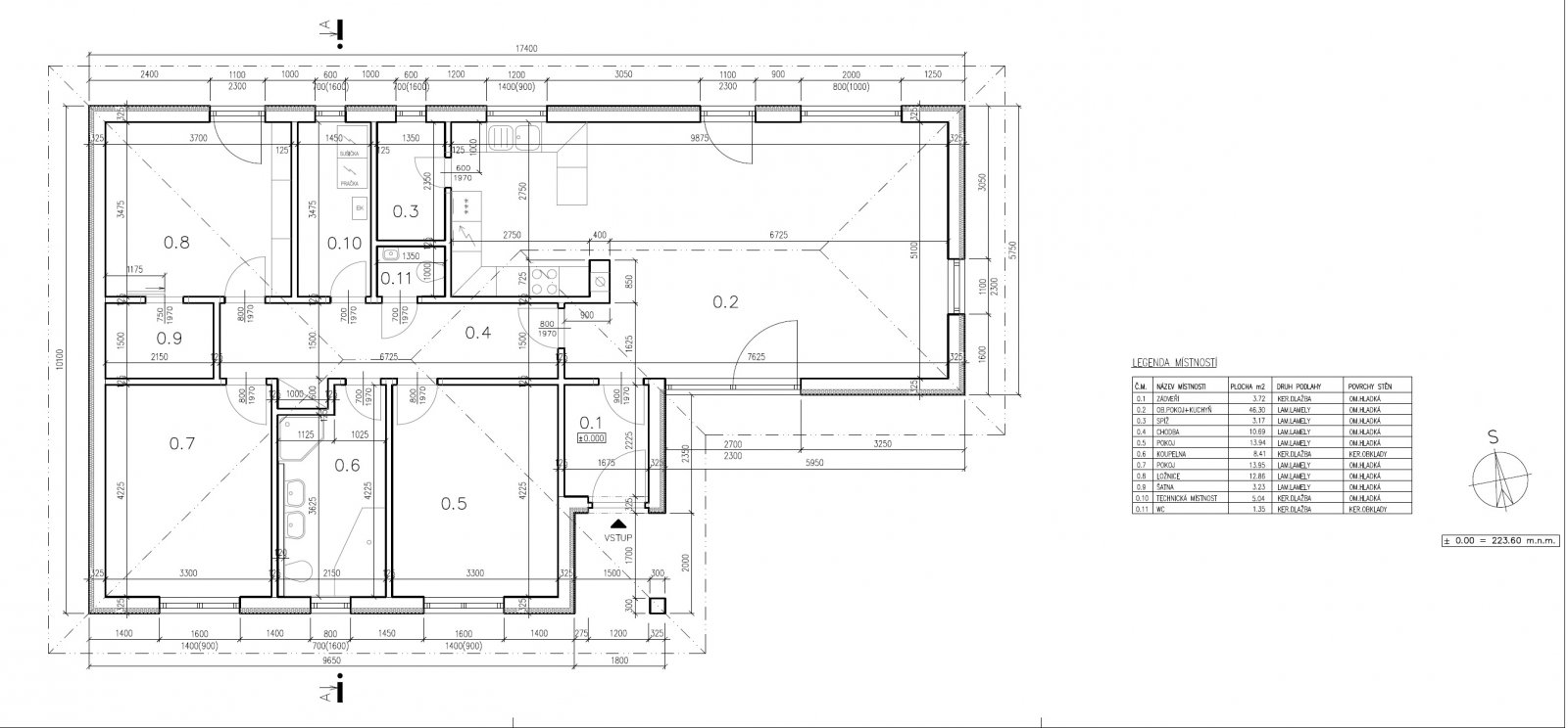
RD SKRBEŇ Dokončené stavby PROJEKTOVÉ INFORMACE Dispozice4+KK Zastavěná plocha149,6 m2 Celková užitková plocha122,6 m2