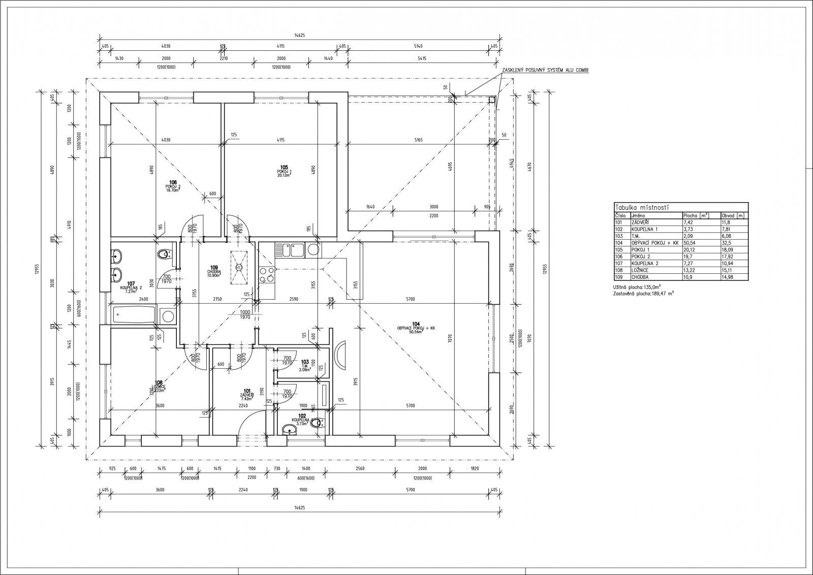
RD SAMOTIŠKY Dokončené stavby PROJEKTOVÉ INFORMACE Dispozice4+kk Zastavěná plocha189,47 m2 Celková užitková plocha135 m2