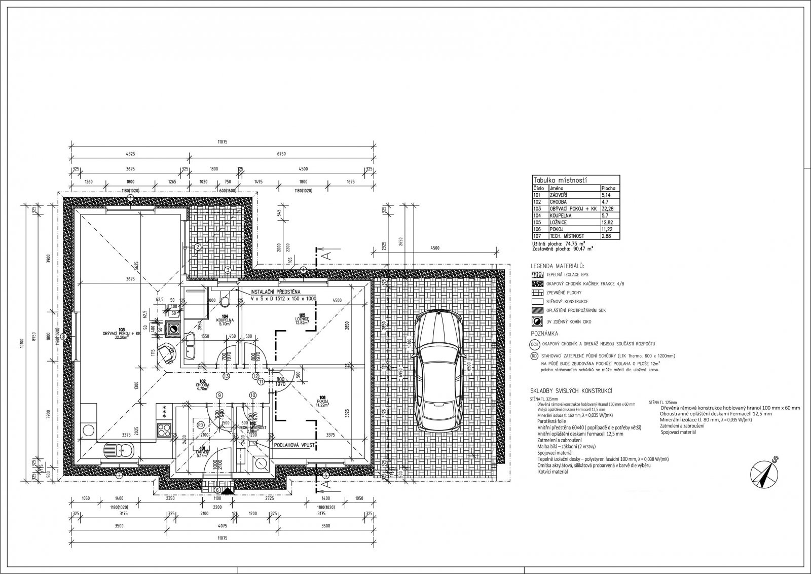
RD RÝMAŘOV Dokončené stavby PROJEKTOVÉ INFORMACE Dispozice3+kk Zastavěná plocha90,47 m2 Celková užitková plocha74,75 m2