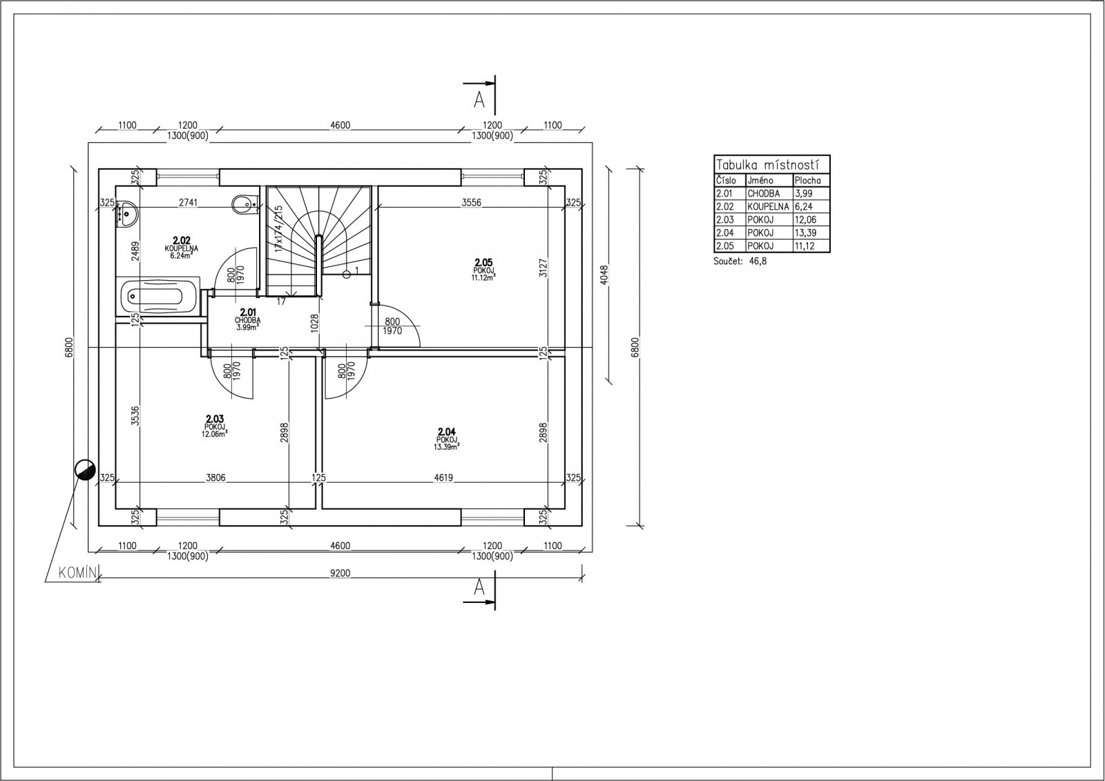
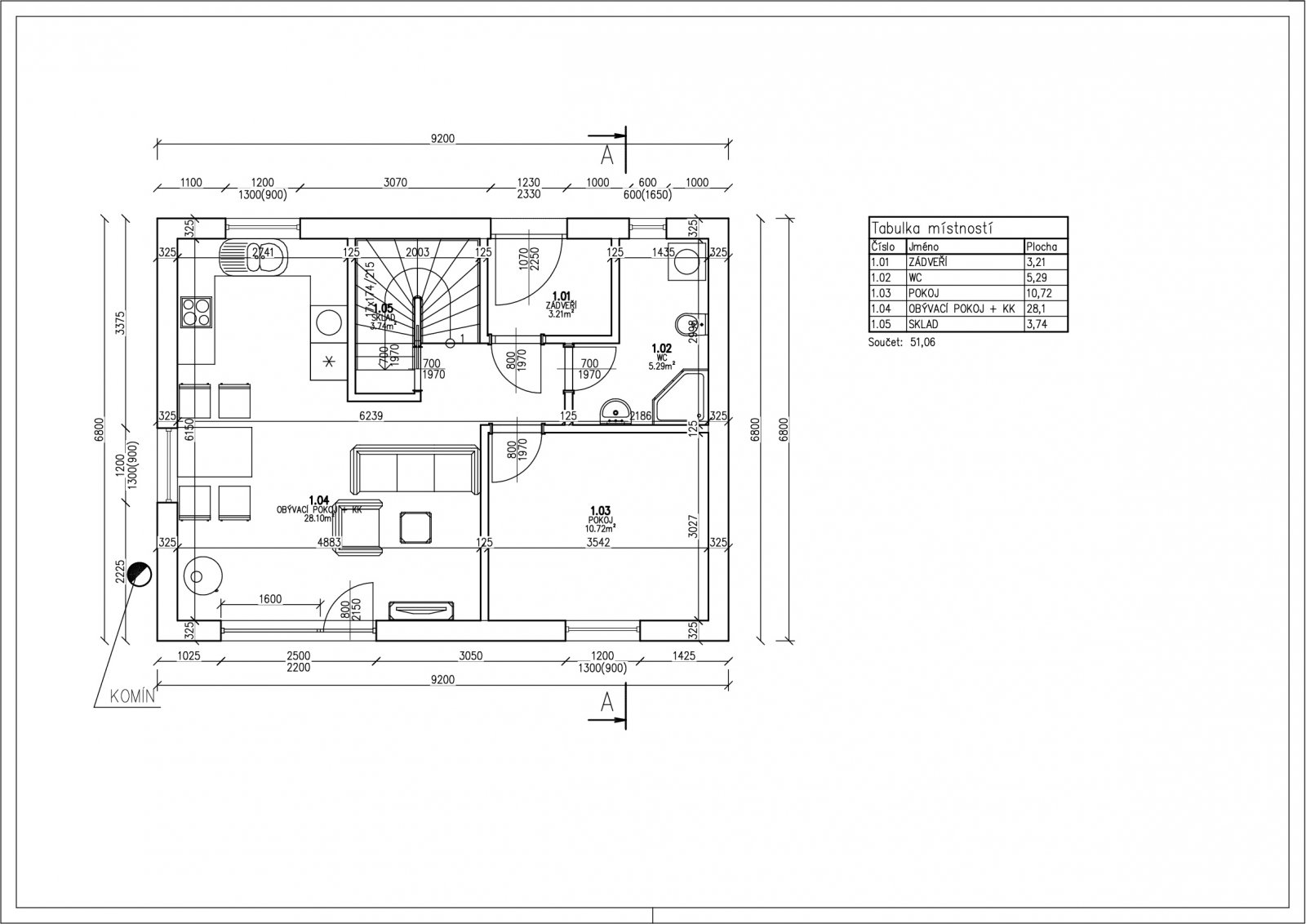
RD HORKA NAD MORAVOU Dokončené stavby PROJEKTOVÉ INFORMACE Dispozice5+kk Zastavěná plocha65,56 m2 Celková užitková plocha97,86 m2