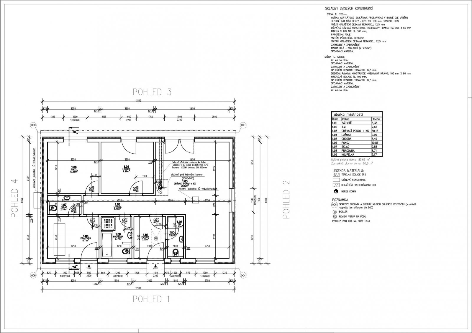
RD CHOMOUTOV Dokončené stavby PROJEKTOVÉ INFORMACE Dispozice4+kk Zastavěná plocha96,8 m2 Celková užitková plocha80,63 m2