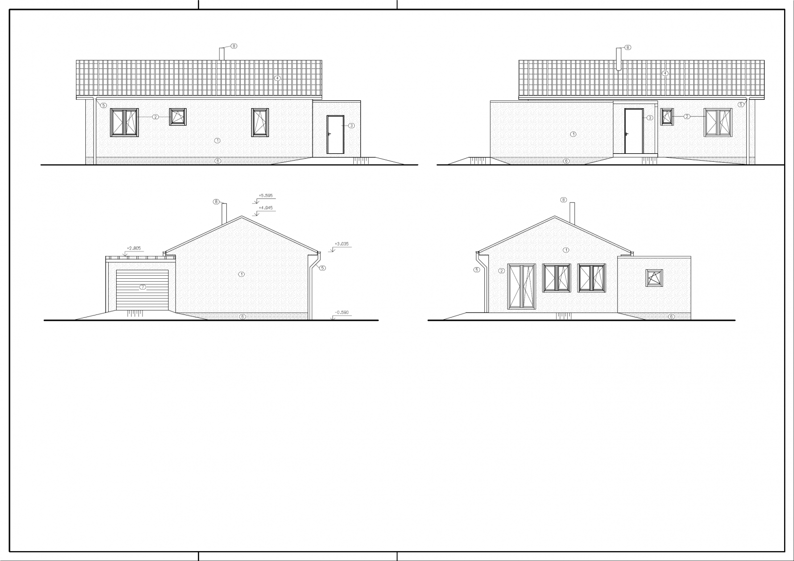
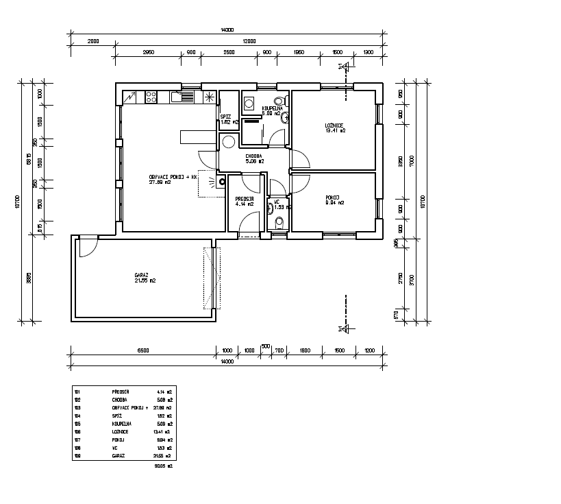
RD ČERVENKA Dokončené stavby PROJEKTOVÉ INFORMACE Dispozice3+kk+G Zastavěná plocha109 m2 Celková užitková plocha92 m2